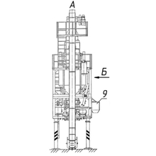
Элеватор ДС-185.41.00.000 ДС-185
Артикул: ДС-185.41.00.000
Объем: 99.0 м3
Масса: 2873.0 кг
Модельный ряд: элеватор на АБЗ ДС-185
Технические характеристики:
- Тип - цепной, вертикальный с сомкнутыми ковшами, гравитационной выгрузки
- Производительность - 55 т/час
- Высота подъема материала - 11.15 м
- Вместимость ковша - 3,7 л
- Скорость движения цепи - 0,7 м/с
- Габариты (ДхШхВ) - 12302х3221х2476 ммм
